Details about 4102 Spruce Street, HOUSE
LOCATION
Google Map:
Address:4102 Spruce Street
Apartment:HOUSE
Number of Bedrooms:8
Rent per Month:$8,500.00 + Utilities
Available On:Monday, June 01, 2026
-
UTILITIES
Tenant Pays For:Heat, Cooking Gas, Electricity, Cold Water, Hot Water, Air Conditioning, Snow Removal
Landlord Pays For:
-
NO PETS
-
APARTMENT DESCRIPTION
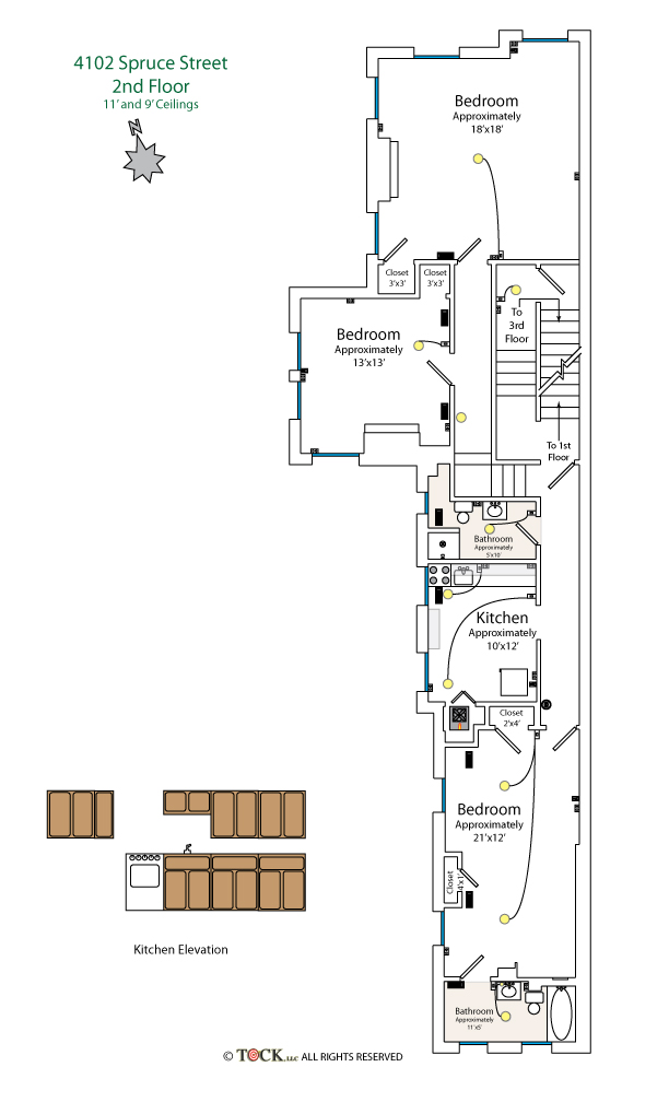
This is a beautiful and very spacious Victorian twin house built around the 1860s. There are many windows in the building providing lots of natural lighting. Outside, there is a driveway that can hold up to 3 cars, and a large backyard. The first floor has an entry hallway; a large living room with tall windows; a kitchen with a gas stove, dishwasher, and refrigerator, and a small porch overlooking the backyard; a bathroom with ceramic tile flooring and tub; a bedroom off the rear hallway; and a rear bedroom with direct access to the backyard and a private bathroom, also with a ceramic tile floor and tub. The second floor has a large front bedroom; a middle bedroom; a bathroom with a ceramic tile floor and shower stall; a kitchen with a gas stove and refrigerator; and a rear bedroom with a private bathroom with ceramic tile flooring and a tub. The third floor has a large front bedroom; a middle bedroom; a bathroom with ceramic tile flooring and a tub; and a rear bedroom as well. The large basement has mechanical systems and a washer and dryer. This building has central air conditioning.
-
LOCATION DESCRIPTION
A beautiful and historic University City block on Spruce Street, with immediate walking access to the University of Pennsylvania. Center City Philadelphia is only a short ride via nearby SEPTA buses and trolleys. There are many great shops and restaurants nearby. Beautiful Clark Park is only a few blocks away as well, and is a popular location for recreation, a farmer's market, and community engagement.
-
Request a showing or more Information
-

Floor Plan and Photos
(Click to Enlarge)



















































































Request a showing or more Information